(1)無店舗型性風俗特殊営業営業開始届出書(指定様式)
当然のことですが、この時点で「店舗名」が決まっていなければなりません。
また、「客の依頼を受ける方法」や「待機所」の所在地等の記載も必要です。
届出に必要な書類等
デリヘル営業開始届出の手続きに必要な書類は以下のとおりです。
(2)営業の方法(指定様式)
主に次のようなことを記載しなければなりません。
①広告または宣伝の方法
②広告または宣伝をするときに18歳未満の者の利用禁止を明らかにする方法
③役務提供の態様
(3)事務所、待機所の賃貸契約書の写し(自己所有の場合は建物登記簿謄本)
(4)事務所、待機所の使用承諾書(様式あり)
管理不動産会社ではなく、家主から直接「デリヘル営業の営業所として使用することを
管理不動産会社ではなく、家主から直接「デリヘル営業の営業所として使用することを
承諾する」旨の承諾を得なければなりません。
*物件契約時に承諾の可否を確認しておく必要があります。
*物件契約時に承諾の可否を確認しておく必要があります。
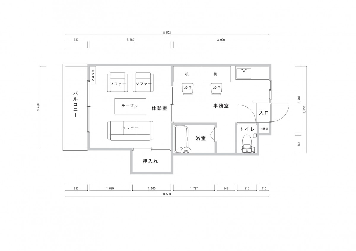
(5)事務所、待機所の平面図
建築設計図並みのものを要求されるわけではありませんが、机やイスの配置など事務所
建築設計図並みのものを要求されるわけではありませんが、机やイスの配置など事務所
内のレイアウトを正確に記載する必要があります。
不慣れな方には煩雑な作業ですので、最小限の手間で確実に手続きするためにも専門の
不慣れな方には煩雑な作業ですので、最小限の手間で確実に手続きするためにも専門の
行政書士にお任せください。
≪当事務所の図面作成例≫
≪当事務所の図面作成例≫

(6)事務所、待機所の周辺図
(7)住民票(法人の場合は役員全員) *本籍地の記載が必要です。
(8)登記事項証明書(法人の場合)
(9)定款の写し *余白に下記のとおり原本証明をしてください。
この定款の写しは当社の定款の原本の写しと相違ありません。
年 月 日(数字は空白のまま)
株式会社〇〇
代表取締役 〇〇〇〇 印
この定款の写しは当社の定款の原本の写しと相違ありません。
年 月 日(数字は空白のまま)
株式会社〇〇
代表取締役 〇〇〇〇 印
(10)その他管轄警察署が提出を要求する書類
初回相談無料です!ご連絡は今すぐこちらまで |
|---|
福岡の無店舗型性風俗特殊営業(デリヘル【デリバリーヘルス】)営業開始届出 ふくおか博多デリヘル開業サポート ☎ 092-406-9676 *メールはこちらからどうぞ 平日9:00~18:00(土曜12:00) 前もってご連絡頂けば、日曜・祝祭日・時間外も対応できます。 |
お問い合わせ・ご相談
( (092) 406-9676
平日9:00~18:00(土曜12:00)
あらかじめご連絡を頂けば、休日・祝日・時間外も対応いたします。
行政書士業務以外(営業、セールス等)のご連絡は固くお断りいたします。
| サービス等のご案内 |
|---|
| ▸初回相談は無料です! ▸料金システムのご案内 ▸手続費用一覧 ▸届出手続き(代行)の流れ ▸行政書士へのご依頼をご検討の皆様へ |
| デリヘル開業手続きの概要 |
|---|
| ▸デリヘル営業の開始届出 ▸届出に必要な書類等 ▸開業後の注意事項 |



